PROCTOR ROAD OVER I-75 BRIDGE
Proctor Road over I-75 in Sarasota, Florida is two continuous spans with a total bridge length of 282 ft. Superstructure comprises five AASHTO Type-V beams. Each beam span consists of two precast prestressed concrete (PPC) segments of 69 ft. long, connected using 1.5 ft. wide cast-in-place (CIP) closure pours at midspan. The two spans are made continuous using a similar 1.5 ft. wide CIP closure pour. Continuous post-tension (PT) over the two spans is provided by three draped tendons that are raised up at the intermediate bent.
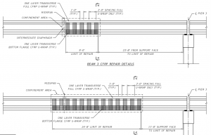
The bridge was impacted by over-height truck causing damage to the exterior beam of span 1 in the form of partial section loss and rupture of prestressing strands with no damage to the PT tendons. Refined analysis was carried out to determine the feasibility of repair, and repair procedure. Further, the refined analysis was used to load rate the bridge after repair. The utilized repair procedure allowed for I-75 to remain open with partial lane closure overnight.












